SERVICES
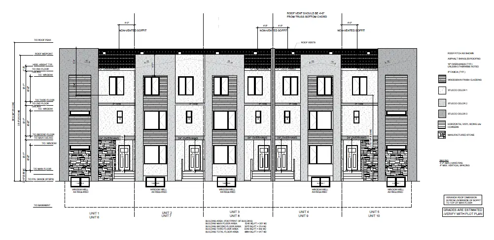
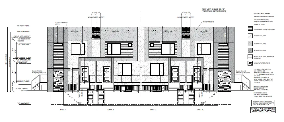
4 and 5 Plex Homes.
Looking to maximize your investment with multi-family housing? Our 4 and 5 Plex construction services inEdmonton are designed for property owners and developers who want to build strong, functional, and profitable rental units.
With a focus on smart layouts, modern design, and long-term durability, we make multi-family construction simple and efficient.



Building a 4 or 5 Plex property is a smart way to generate steady rental income while maximizing land use. Our team specializes in designing and constructing multi-unit residential buildings that balance comfort, privacy, and efficiency for tenants while ensuring long-term value for property owners.
From zoning and permits to construction and final finishes, we manage the entire process with precision and professionalism. Each unit is thoughtfully designed with functional layouts, energy-efficient materials, and stylish interiors that appeal to modern renters. Whether you’re an investor expanding your portfolio or a family building a multi-generational home, our 4 and 5 Plex construction services in Edmonton provide a reliable solution built to last.

